













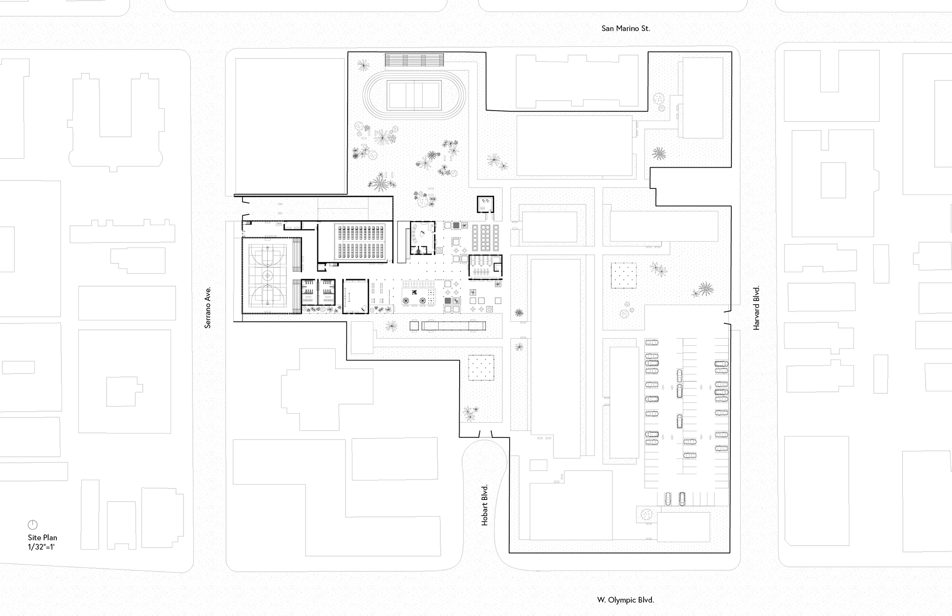
This prototypical project can be applied across Los Angeles, tackling the city’s severe housing crisis, evident in the Los Angeles Housing Element, while also addressing urban heat island effects, social isolation, and a growing aging population. Elementary school campuses in LA are currently covered in heat-absorbing asphalt playgrounds, intensifying the heat island effect. This project draws from research demonstrating the positive effects of intergenerational programs on older adults and young children, as well as innovative strategies for reimagining underutilized land on elementary schools owned by one of the largest landholders in the city, the Los Angeles Unified School District (LAUSD). The project proposes a prototype for independent living senior housing on LAUSD elementary schools, complemented by redesigned shared play spaces and improved arts and fitness facilities. This holistic approach offers a scalable solution to the housing crisis, social connectivity, and heat mitigation, targeting up to 140 elementary schools strategically selected based on their proximity to hospitals and public transit.